AMG VIETNAM OFFICE
Tổng quan
- Vị trí:Phong Phương Building
- Diện tích:126m2
- Đơn vị thực hiện:JDesign Co., LTD
- Năm triển khai:2022
“AMG VIETNAM OFFICE’’
Dự án Thiết kế và Thi công Nội thất Văn phòng AMG Vietnam tọa lạc tại tòa nhà Phong Phương Building, với điểm nhấn là gam màu trầm kết hợp với màu gỗ lạnh của phong cách Hiện đại mang hơi hướng một chút Industrial.
Phân khu chức năng được bố trí hợp lý, hài hòa, đầy đủ cho các phòng ban chuyên trách của Công ty. Không gian làm việc được chia ra thành khu làm việc chung và các khu làm việc riêng biệt, kết hợp cùng phong cách thiết kế trên tạo lên một văn phòng làm việc chuyên nghiệp, lịch sự.
Tham khảo ngay các hình ảnh dưới đây về Dự án Thiết kế và Thi công Nội thất Văn phòng AMG Office nhé!
------------------------------------------------------
JDesign Co., LTD - CUNG CẤP GIẢI PHÁP TRỌN GÓI LIÊN QUAN ĐẾN THIẾT KẾ VÀ THI CÔNG NỘI THẤT!
Liên hệ ngay để được đặt lịch Tư vấn/Khảo sát/Báo giá miễn phí!
Bảo hành sản phẩm lên đến 03 năm – Cam kết bảo trì sản phẩm suốt đời!
Mọi chi tiết/yêu cầu xin vui lòng liên hệ:
- Email: contact.jdesignvn@gmail.com
- Tel: 0866.648.298
- Website: https://j-design.vn/
- Fanpage: https://www.facebook.com/jdesignvn
- VPGD: Số 03, ngõ 50 Ngụy Như Kon Tum, phường Thanh Xuân, Hà Nội
JDesign - Your Inspiration. Our Creation!
#jdesignvn #interior #interiordesign #interiordecor #amgvietnam #office #phongphuongbuilding #thietke #thicong #noithat #vanphong

Khu vực sảnh lễ tân




Không gian làm việc chung

Pantry khô và Lối vào Phòng họp

Phòng kế toán



Phòng họp




Phòng Giám đốc

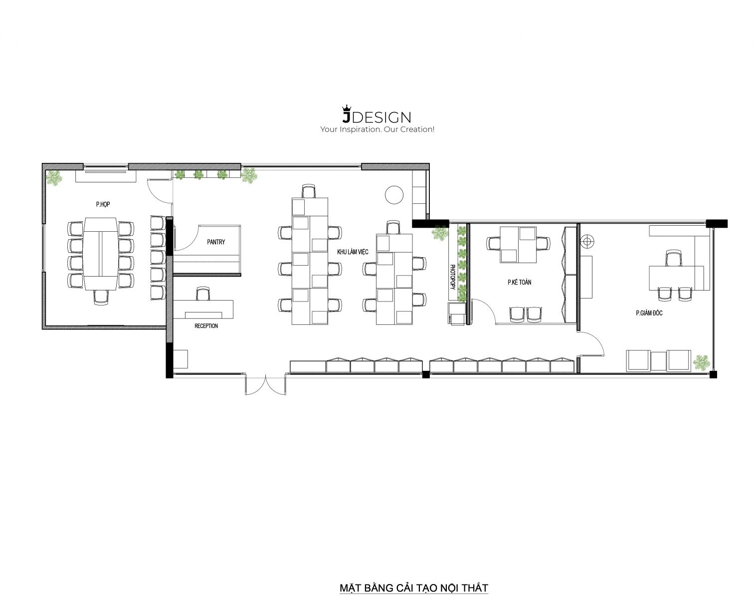
Mặt bằng cải tạo nội thất văn phòng
Ngày nay, tầm quan trọng của Thiết kế và Thi công Nội thất ngày càng được biết đến.
Nhất là làm sao để tìm được các Đơn vị uy tín, có trách nhiệm, cập nhật các xu hướng mới nhất về mẫu mã, thiết kế bài bản và quan trọng hơn cả đó là chất lượng thi công hoàn thiện luôn được đặt lên hàng đầu là cái mà các Khách hàng rất quan tâm.
JDesign Co., LTD tự hào là Đơn vị Thiết kế và Thi công Nội thất hàng đầu tại Việt Nam.
Chúng tôi mang lại cho khách hàng rất nhiều các mẫu mã về thiết kế, các giải pháp về công năng sử dụng, phân chia mặt bằng trong Văn phòng dành cho các Khách hàng có nhu cầu Thiết kế và Thi công Nội thất Văn phòng Công ty, Doanh nghiệp và đặc biệt là hàng ngàn ưu đãi dành cho các khách hàng của mình!
Quý khách có thể tham khảo thêm một vài hình ảnh về các mẫu Thiết kế Nội thất Văn phòng Công ty đẹp và ấn tượng ở các Dự án khác theo đường link sau đây:
-
Dự án USAID HEDS Hanoi Office: https://j-design.vn/du-an/usaid-heds-hanoi-office.html
-
Dự án AMG Vietnam Office: https://j-design.vn/du-an/amg-vietnam-office.html
-
Dự án CEO Room: https://j-design.vn/du-an/ceo-room-cau-giay.html
-
Dự án Gaw NP Office: https://j-design.vn/du-an/gaw-np-hanoi-office.html
-
Dự án Văn phòng MEP Đống Đa: https://j-design.vn/du-an/van-phong-mep-dong-da.html
-
Dự án IVC Office: https://j-design.vn/du-an/ivc-office.html







